My introduction to woodworking was in college, back in the early 60's. Working on an Industrial Arts BA degree I had a professor who was the consumate woodwork artist and craftsman. Conrad Johnson ran his woodworking shop/studio with strict rules and demanded high standards. I can't say that I was a natural, or that I had the interest and motivation to continue with the development of my woodworking skills at that time - I was much more interested in electronics and mechanics - but years later the things I learned and the high standards of craftsmanship Mr. Johnson instilled in me came through in the work that I have done and am now doing.
When I was first introduced to Arts and Crafts/Craftsman Style/Mission Style, I fell in love with the simple lines and especially the quarter-sawn white oak that so many crafts people and artists have used in their work.











I started with some sketches of some web images and began to look at what Bill had in the way of previously cut timber. I settled on Red Oak.






Anyway, I was introduced to Rubio Monocoat on the Blacktail videos and decided that the advantanges of this finish was what I was looking for, especially the fact that repairs to damages to the finish are easy to repair without sanding and refinishing the entire tabletop. I used it on the table base pictured left. And plan to use it on the tabletop.





I bought about 60 bf of 6/4 black walnut from Williard Brothers, in Trenton, NJ. They have a huge collection of many species of wood and a good mill shop. My jointer isn't up to par so they joined the edges to make it easier for me to glue up. I used biscuits to help align the pieces. The image left is the underside of the top after gluing. There were a few places that I wanted to piece in, and the underside was good place to practice.


Saw a photo of an Arts and Crafts sconce and just had to try my hand at producing something similar. I am used to working on larger projects that involve larger pieces so my challenge was to work with quite a bit smaller parts.
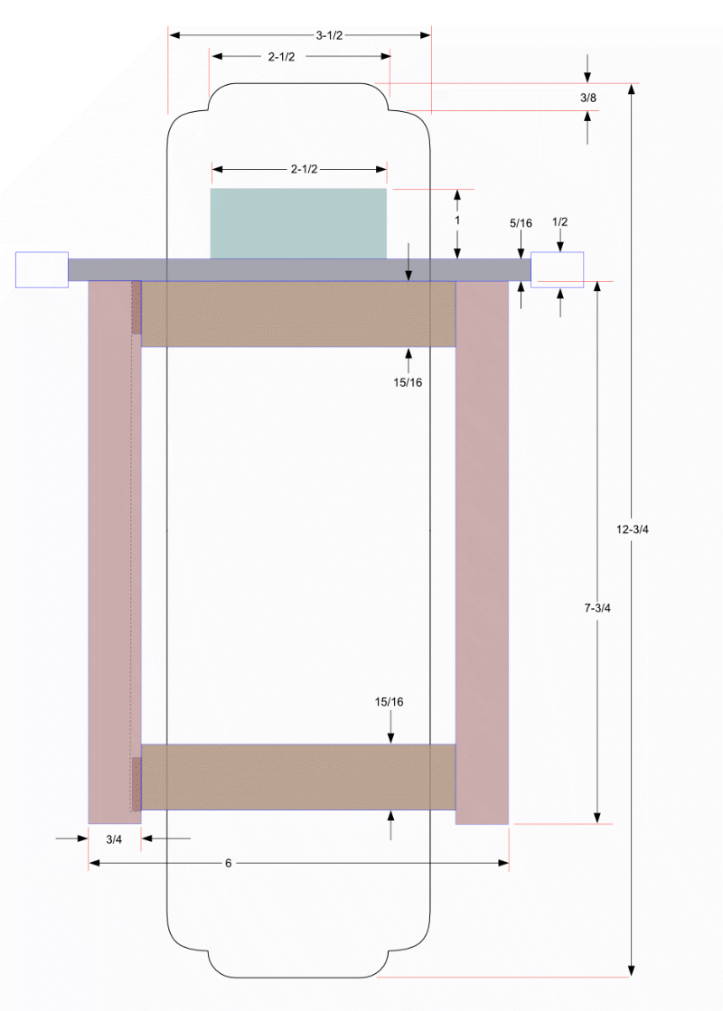
These pieces were quite easy. For the back I cut out a template from 1/4" MDF on the laser cutter (and routered the shape) in order to keep both backs identical. I wanted to make two sconces. Note that the horizontal pieces are drilled to the stepped holes on the underside to accept wires. The stepped holes are to clear the washer and nut for the E17 socket.
I chose a E17 size socket for the LED bulb so that it could be fastened to the flat top piece shown above.
Dry fitted all the pieces for the glass enclosure before staining and finishing each piece. Thought that would make finishing a bit easier, although I found it difficult to keep from scratching pieces when gluing up and putting in the stained glass.
Made a simple jig to keep the pieces square while gluing.
Here's where I confess to making the dados for the stained glass too narrow. I should have bought the glass first, measured it, and grooved to slots the right size. Instead I figured the stained glass would be 1/8", so I slotted the vertical pieces and the top and bottom pieces on the table saw. I didn't realize I still had a thin kerf blad installed, about 3mm, instead of a standard 1/8" blade. So the glass would't fit. So I spent hours trying to widen the slots of the side and bottom pieces that were already glued up. Top pieces were no problem because they float and are fastened to the top, so they could be run through the saw again to widen the kerf.
I wanted to be able to replace the stained glass if it broke, so I used the laser cutter to cut a top piece that would both fasten to each of the four pillars and each of the four top pieces that hold the stained glass.
I wanted to be able to replace the stained glass if it broke, so I used the laser cutter to cut a top piece that would both fasten to each of the four pillars and each of the four top pieces that hold the stained glass.
Sconces mounted in our dining room.